Einfamilienhäuser Feldstraße
Neubau
Neubau mit Einliegerwohnung
Auf Grundlage der Planung für die Wohnanlage Russenstraße wurden hier zwei baugleiche Einfamilienhäuser mit Einliegerwohnung und ein Gartenhaus geplant.
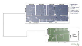
Die Einfamilienhäuser haben eine Grundfläche von 189m2 und schaffen mit einem großen Wohn- und Essbereich im Erdgeschoss, vier Räumen im Obergeschoss und insgesamt drei Bädern eine sehr großzügige Atmosphäre.
Die Einliegerwohnungen erstrecken sich mit 77qm über zwei Etagen und verfügen im Erdgeschoss über einen zum Teil 5,5m hohen Wohn- und Essbereich mit offener Küche und ein Schlafzimmer im Obergeschoss.
Die Fenster und Terrassen der beiden Einheiten sind so angeordnet daß gegenseitige Störungen vermieden werden und die Privatsphäre gewahrt bleibt.
 
     
                
                             
                
                             
                
                             
                
                             
                
                            